Listing Tools

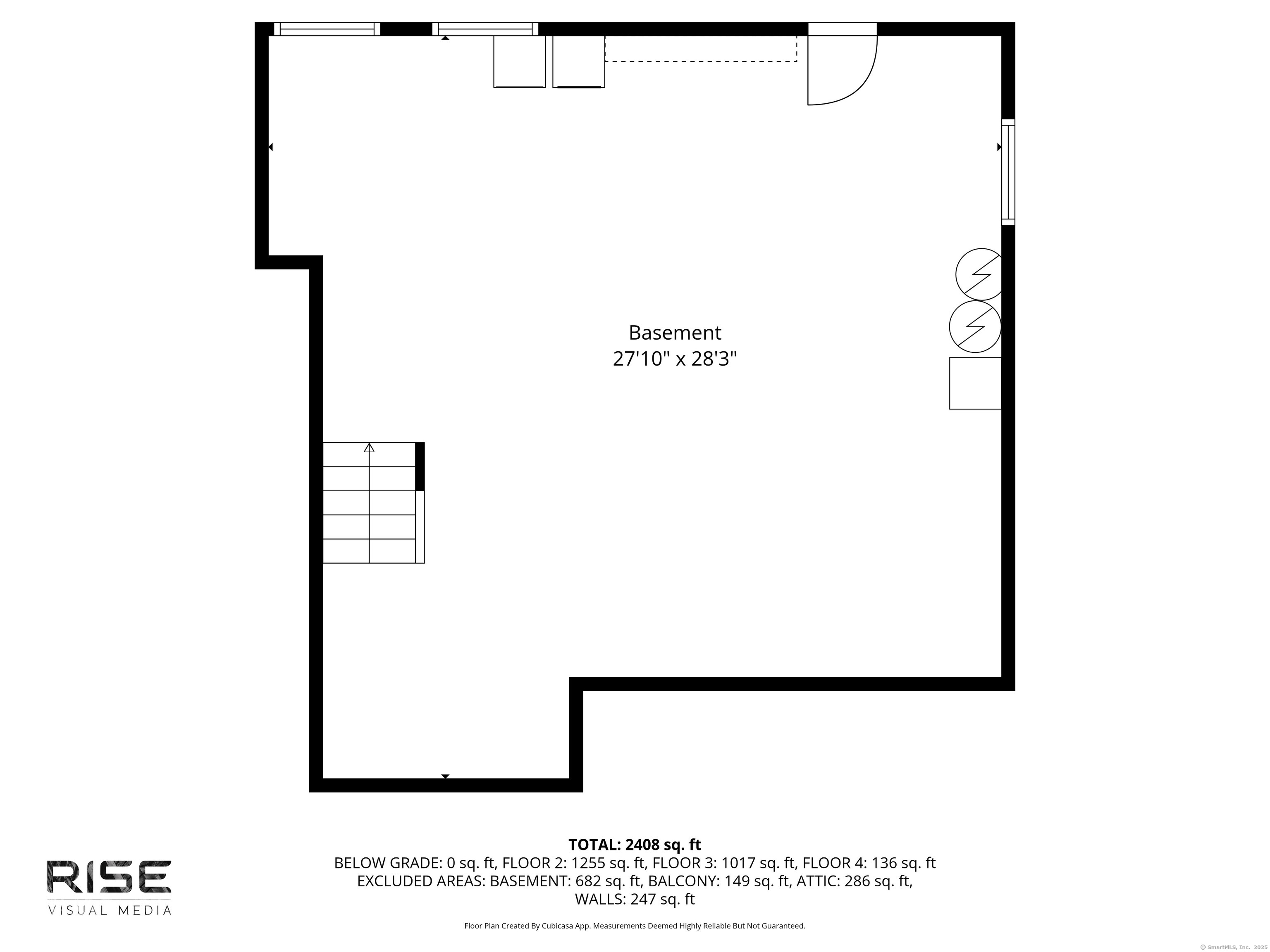
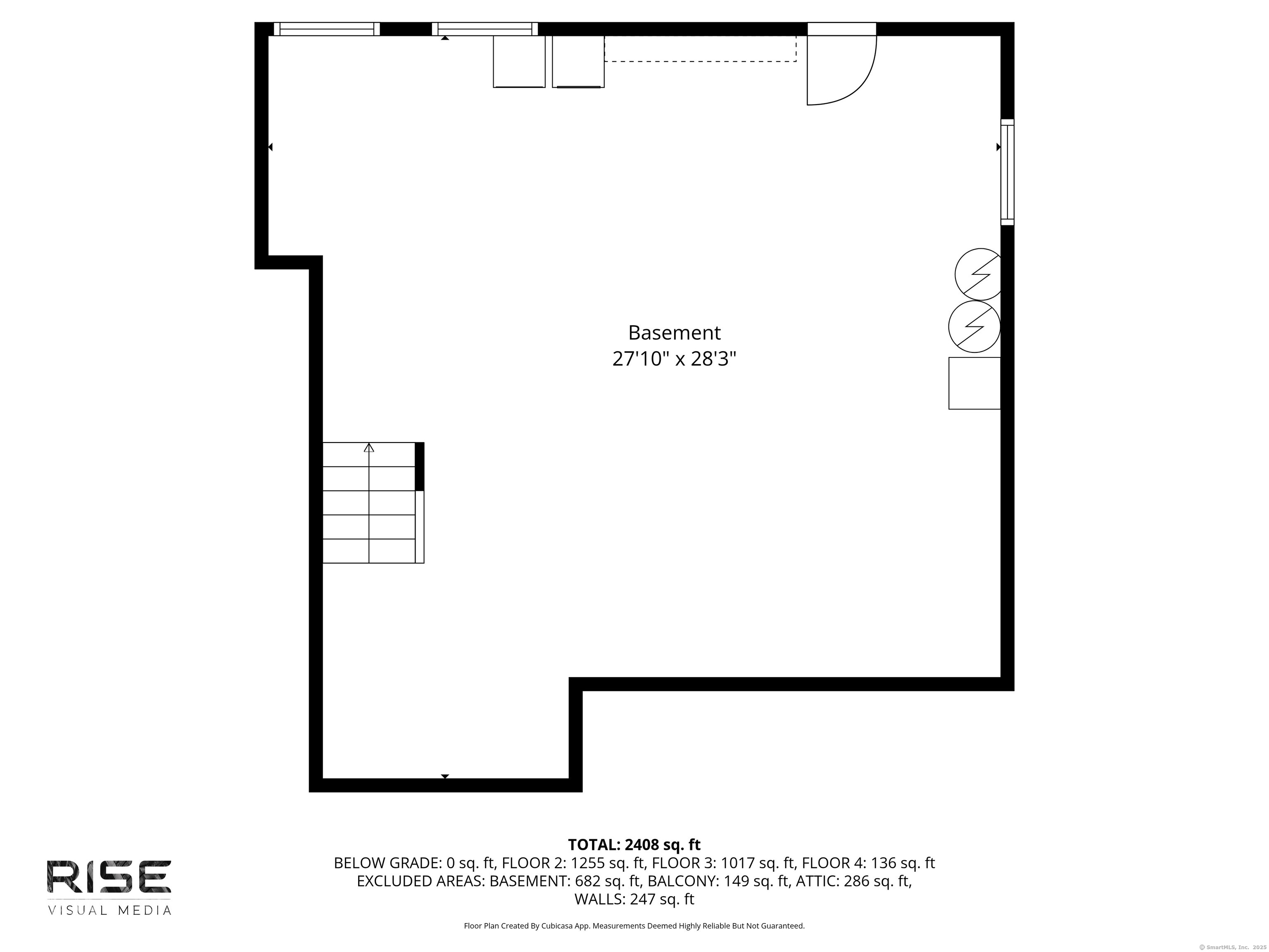
Opportunity knocks in downtown Colchester! First time offered. Pristinely maintained by original family. Versatile building in town center with generous parking. 3 units most recently used as a salon, clothing/boutique/retail and one residential unit, 2nd floor. Walk up attic offers expansion potential. Living above work is viable here! See attachments for extensive TC permitted uses. Separate utilities for each floor, apt. is on it's own furnace, electric, and hot water. Building is denoted as commercial, so listing is under commercial offering. Practical/ current use is more mixed use, best represented in multiple units. One stylist remains mo. to mo. - with part time hours. Easy to show. Property is also listed under multi-family mls# 24132330.

Property Details of 56 Norwich Avenue

Map Location

Driving Directions

Listed by Mary Poola of William Raveis Real Estate ((860) 625-1913)

The data relating to real estate for sale on this website appears in part through the SmartMLS Internet Data Exchange program, a voluntary cooperative exchange of property listing data between licensed real estate brokerage firms, and is provided by SmartMLS through a licensing agreement. Listing information is from various brokers who participate in the SmartMLS IDX program and not all listings may be visible on the site. The property information being provided on or through the website is for the personal, non-commercial use of consumers and such information may not be used for any purpose other than to identify prospective properties consumers may be interested in purchasing. Some properties which appear for sale on the website may no longer be available because they are for instance, under contract, sold or are no longer being offered for sale. Property information displayed is deemed reliable but is not guaranteed. Copyright 2026 SmartMLS, Inc.

Hi there! How can we help you?

Contact us using the form below or give us a call.

Send Us A Message:

I agree to be contacted by Jeanne Crum via call, email, and text for real estate services. To opt out, you can reply 'stop' at any time or reply 'help' for assistance. You can also click the unsubscribe link in the emails. Message and data rates may apply. Message frequency may vary. Privacy Policy.

Do not fill in this field:

This site is protected by reCAPTCHA and the Google Privacy Policy and Terms of Service apply.