Listing Tools

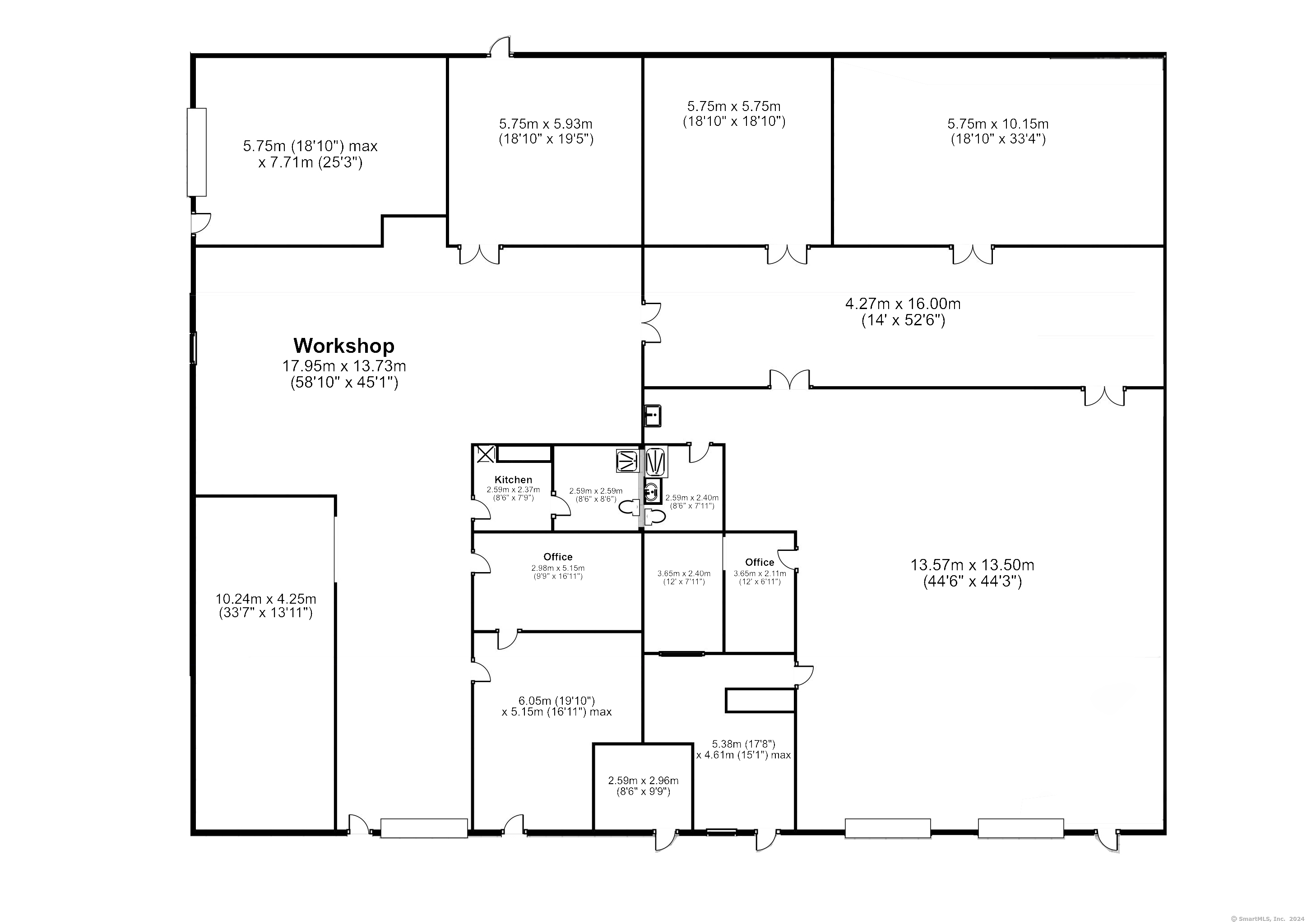
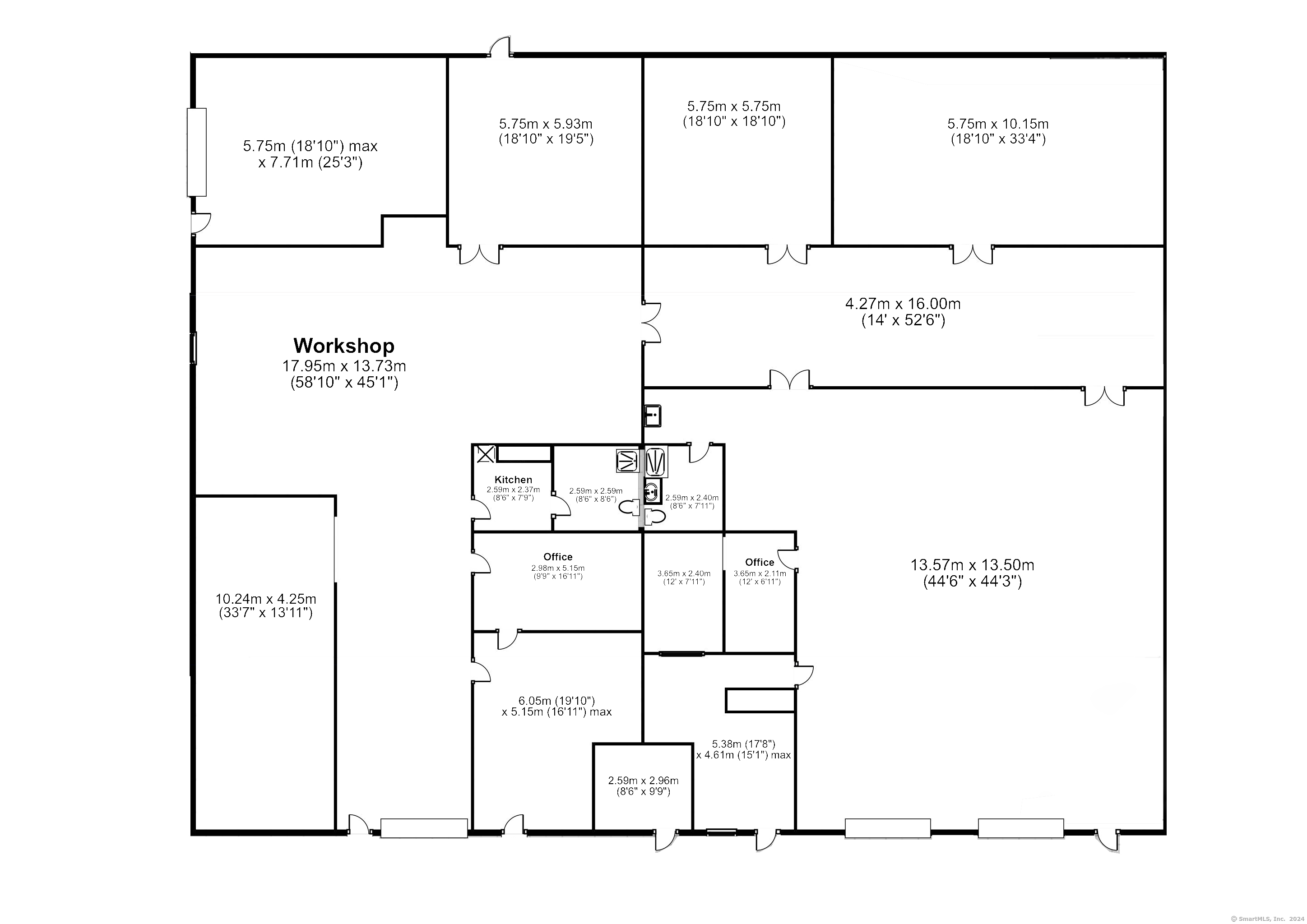
This unique property is a great investment opportunity! It consists of a 1500 square foot single family home and an 8,000 square foot commercial/industrial building on a 1 acre lot. The home offers 4 bedrooms (1 bedroom on the main level), 2 bathrooms, living room, dining room, an eat-in kitchen, first floor laundry hookups and a spacious deck. The commercial building offers ample parking spaces with many different possibilities depending on the needs of the buyer. This building features 3 spaces that have separate entrances and overhead garage doors, large open workshop areas, several offices, spray booth rooms and 2 bathrooms. This property could be a perfect fit for someone looking for rental income or if they owned a business or had a hobby where they could utilize the large square footage in this building. Don't miss out on your chance to own this property with endless potential!

Property Details of 210 Brewer Street

Map Location

Driving Directions

Listed by Michael Willin of Coldwell Banker Realty ((860) 205-1872)

The data relating to real estate for sale on this website appears in part through the SmartMLS Internet Data Exchange program, a voluntary cooperative exchange of property listing data between licensed real estate brokerage firms, and is provided by SmartMLS through a licensing agreement. Listing information is from various brokers who participate in the SmartMLS IDX program and not all listings may be visible on the site. The property information being provided on or through the website is for the personal, non-commercial use of consumers and such information may not be used for any purpose other than to identify prospective properties consumers may be interested in purchasing. Some properties which appear for sale on the website may no longer be available because they are for instance, under contract, sold or are no longer being offered for sale. Property information displayed is deemed reliable but is not guaranteed. Copyright 2026 SmartMLS, Inc.

Hi there! How can we help you?

Contact us using the form below or give us a call.

Send Us A Message:

I agree to be contacted by Jeanne Crum via call, email, and text for real estate services. To opt out, you can reply 'stop' at any time or reply 'help' for assistance. You can also click the unsubscribe link in the emails. Message and data rates may apply. Message frequency may vary. Privacy Policy.

Do not fill in this field:

This site is protected by reCAPTCHA and the Google Privacy Policy and Terms of Service apply.