Listing Tools

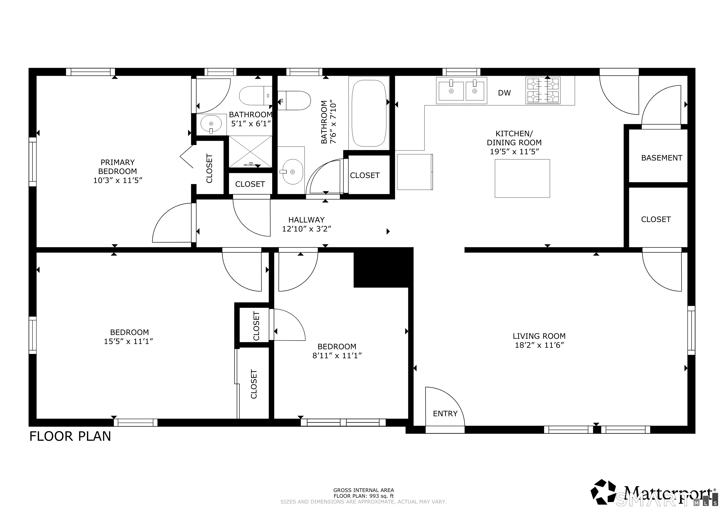
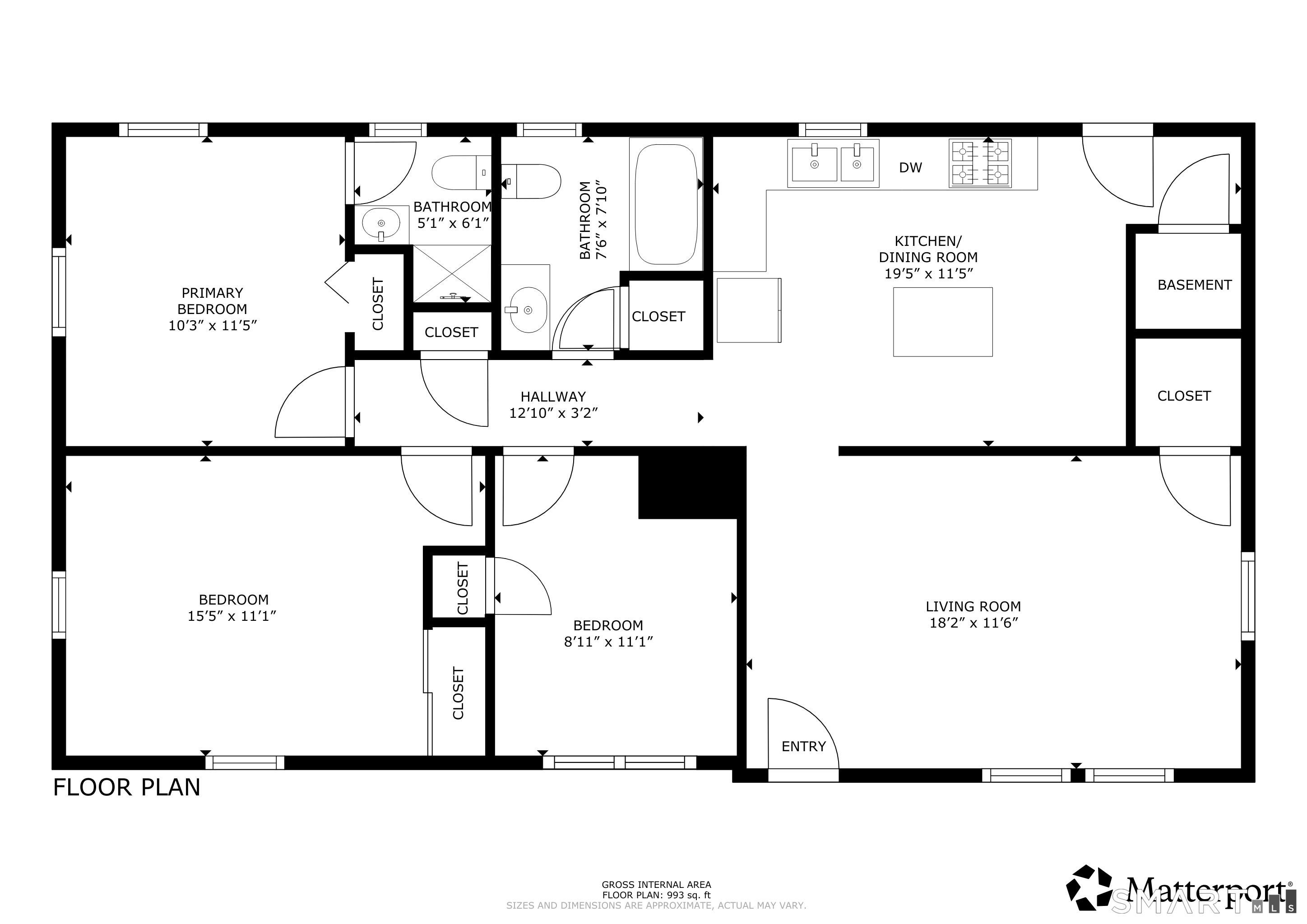
OFFER DEADLINE: The seller is asking for all offers to be in by Tuesday, 04/14, at 6 pm. THANK YOU! Welcome to this well-maintained 3-bedroom, 2-bath ranch offering comfort, convenience, and modern updates throughout. Ideally located near Route 6, this home provides easy access to shopping, dining, and is just a short drive to Eastern Connecticut State University and UCONN. Inside, you'll find beautiful flooring that flows seamlessly throughout the home, along with an updated kitchen featuring granite countertops and stainless steel appliances. Both bathrooms have been tastefully updated, adding to the home's move-in-ready appeal. Step outside to enjoy a spacious deck overlooking a fully fenced backyard-ideal for relaxing, gardening, or hosting gatherings. Additional highlights include a newer roof, hot water heater, and insulation, offering peace of mind for years to come. Don't miss this opportunity to own a turnkey home in a convenient and desirable location!

Property Details of 63 Whittemore Street

Map Location

Driving Directions

Listed by Barbara Royea of Carl Guild & Associates (barbaraloveshomes@gmail.com)

The data relating to real estate for sale on this website appears in part through the SmartMLS Internet Data Exchange program, a voluntary cooperative exchange of property listing data between licensed real estate brokerage firms, and is provided by SmartMLS through a licensing agreement. Listing information is from various brokers who participate in the SmartMLS IDX program and not all listings may be visible on the site. The property information being provided on or through the website is for the personal, non-commercial use of consumers and such information may not be used for any purpose other than to identify prospective properties consumers may be interested in purchasing. Some properties which appear for sale on the website may no longer be available because they are for instance, under contract, sold or are no longer being offered for sale. Property information displayed is deemed reliable but is not guaranteed. Copyright 2026 SmartMLS, Inc.

Hi there! How can we help you?

Contact us using the form below or give us a call.

Send Us A Message:

I agree to be contacted by Jeanne Crum via call, email, and text for real estate services. To opt out, you can reply 'stop' at any time or reply 'help' for assistance. You can also click the unsubscribe link in the emails. Message and data rates may apply. Message frequency may vary. Privacy Policy.

Do not fill in this field:

This site is protected by reCAPTCHA and the Google Privacy Policy and Terms of Service apply.