Listing Tools

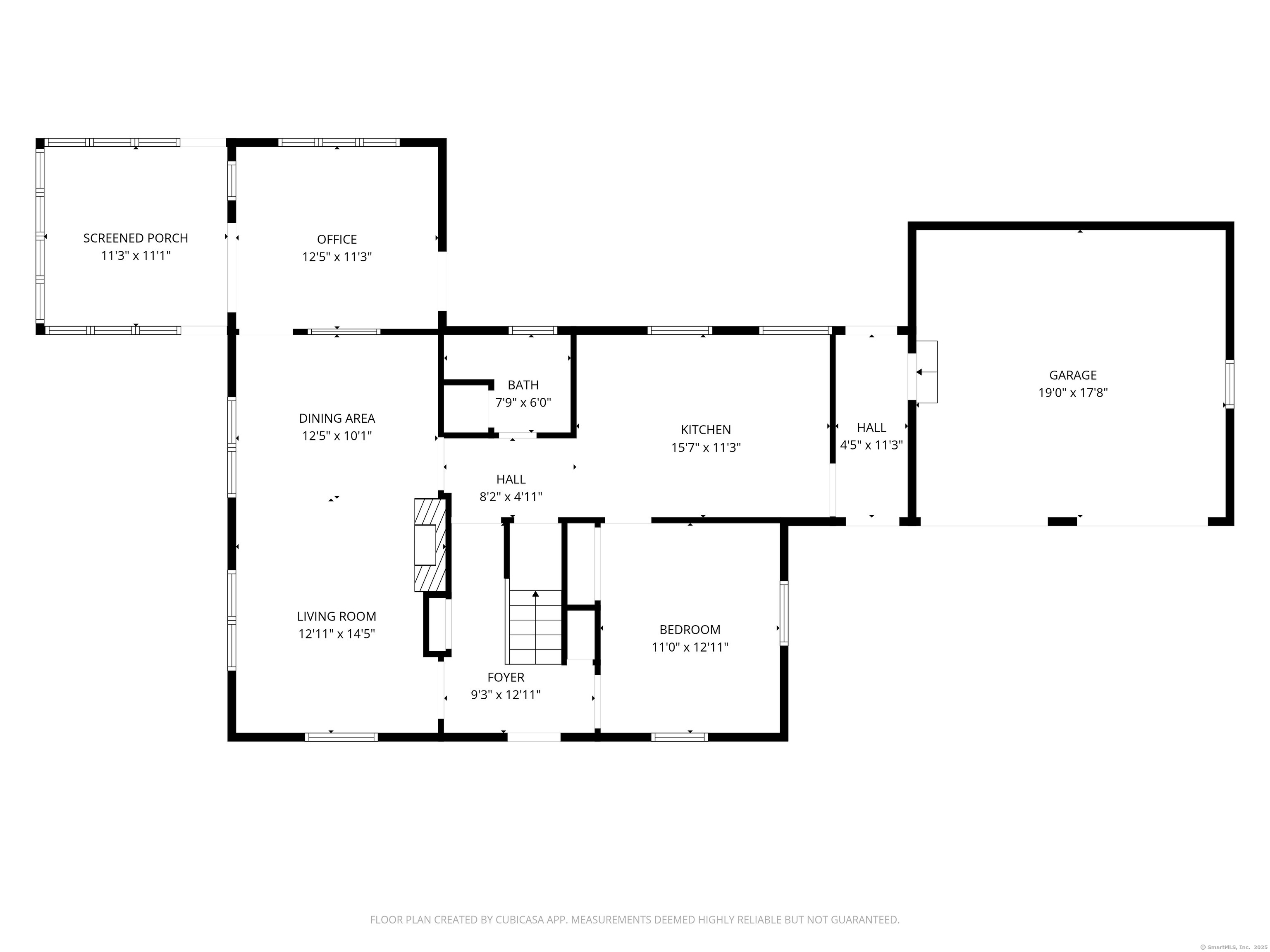
Rarely on the market, a 84 acre parcel with a 1615 sq ft updated home with a two car attached garage overlooking a pond with a Barn and an additional shed for storage of equipment that would be used to maintain the acreage under Public Act 490. The home has a newer roof, oil warm air heat with an attached wood burning furnace to reduce burning oil for heat. The kitchen has Granite counters and Stove, dishwasher, and Refrigerator appliances. The 2 baths have also been updated with step in showers. There are 2 fireplaces, one in the Living Room and the one in the unfinished basement(that is not functioning because of the wood burning furnace) This fireplace can become functional if the wood burning furnace is disconnected. A screen porch and patio overlook the pond - There is an opportunity to continue using this property as the tree farm that it is currently being used or it could be developed as a sub division after purchasing this property "AS-IS"

Property Details of 559 East Street

Map Location

Driving Directions

Listed by Joe Krist of Century 21 AllPoints Realty ((860) 989-6345)

The data relating to real estate for sale on this website appears in part through the SmartMLS Internet Data Exchange program, a voluntary cooperative exchange of property listing data between licensed real estate brokerage firms, and is provided by SmartMLS through a licensing agreement. Listing information is from various brokers who participate in the SmartMLS IDX program and not all listings may be visible on the site. The property information being provided on or through the website is for the personal, non-commercial use of consumers and such information may not be used for any purpose other than to identify prospective properties consumers may be interested in purchasing. Some properties which appear for sale on the website may no longer be available because they are for instance, under contract, sold or are no longer being offered for sale. Property information displayed is deemed reliable but is not guaranteed. Copyright 2025 SmartMLS, Inc.

Hi there! How can we help you?

Contact us using the form below or give us a call.

Send Us A Message:

I agree to be contacted by Jeanne Crum via call, email, and text for real estate services. To opt out, you can reply 'stop' at any time or reply 'help' for assistance. You can also click the unsubscribe link in the emails. Message and data rates may apply. Message frequency may vary. Privacy Policy.

Do not fill in this field:

This site is protected by reCAPTCHA and the Google Privacy Policy and Terms of Service apply.