Listing Tools

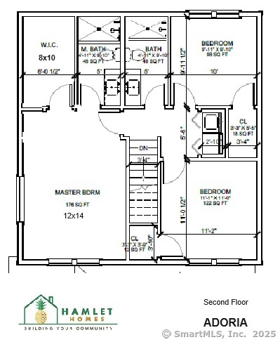
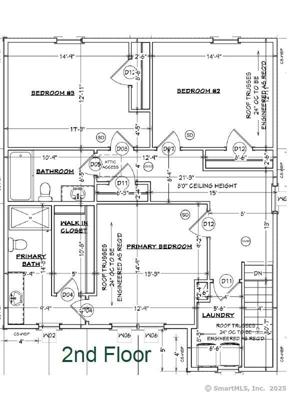
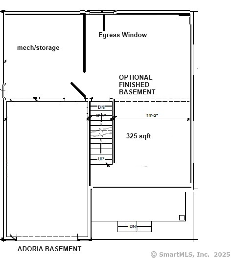
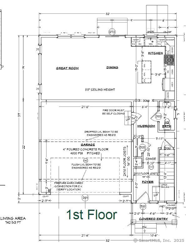
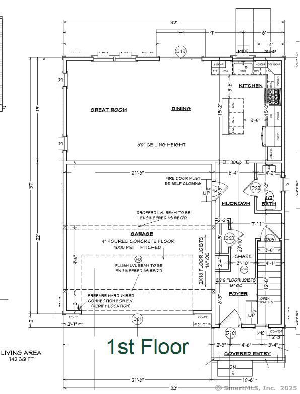
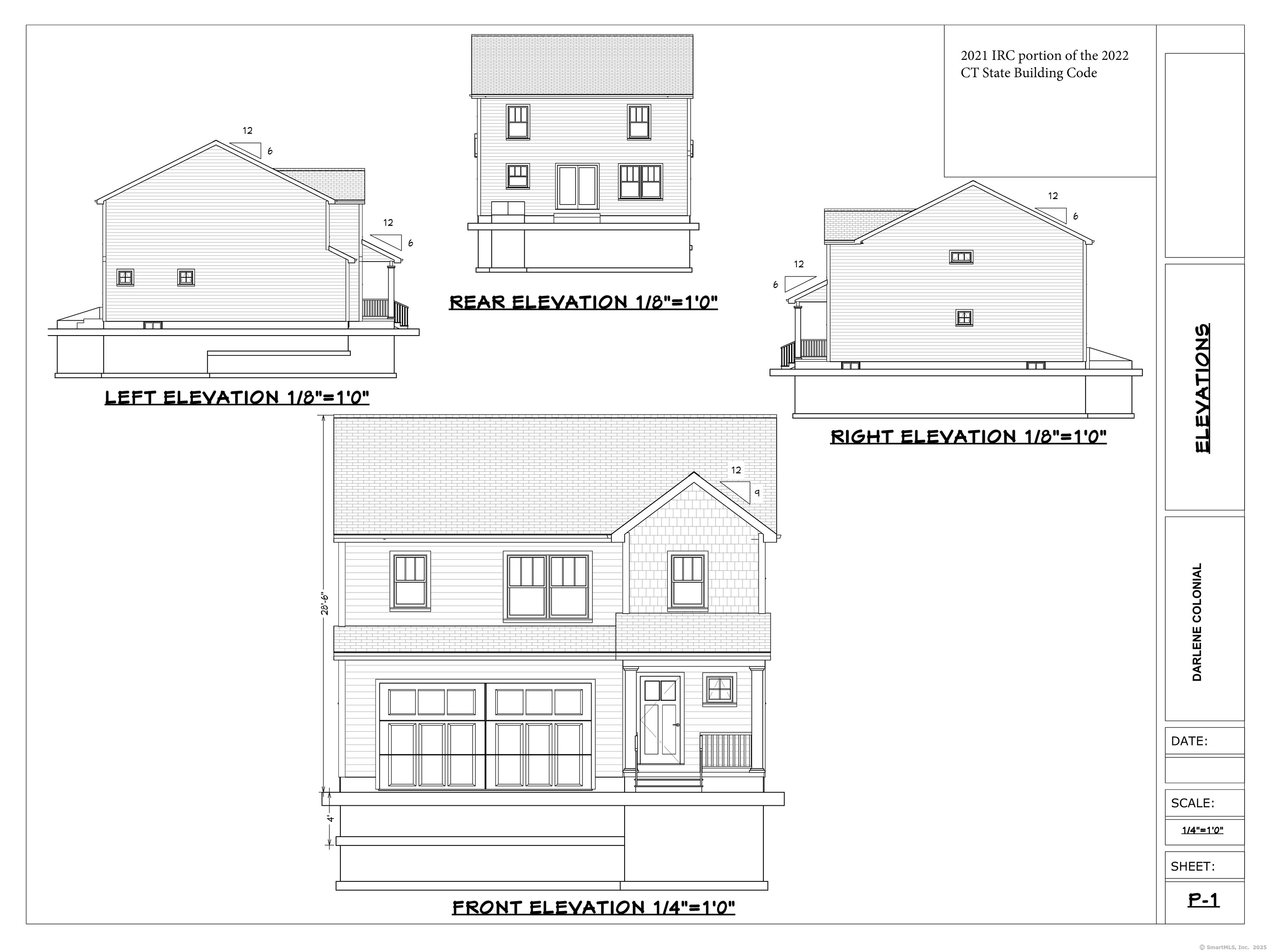
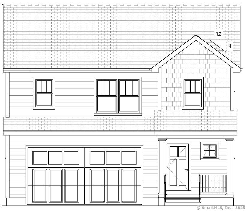
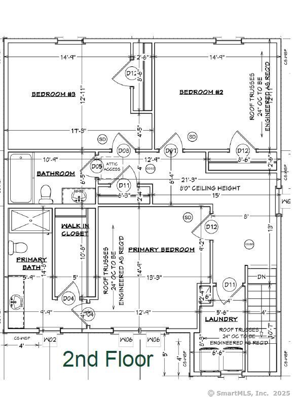
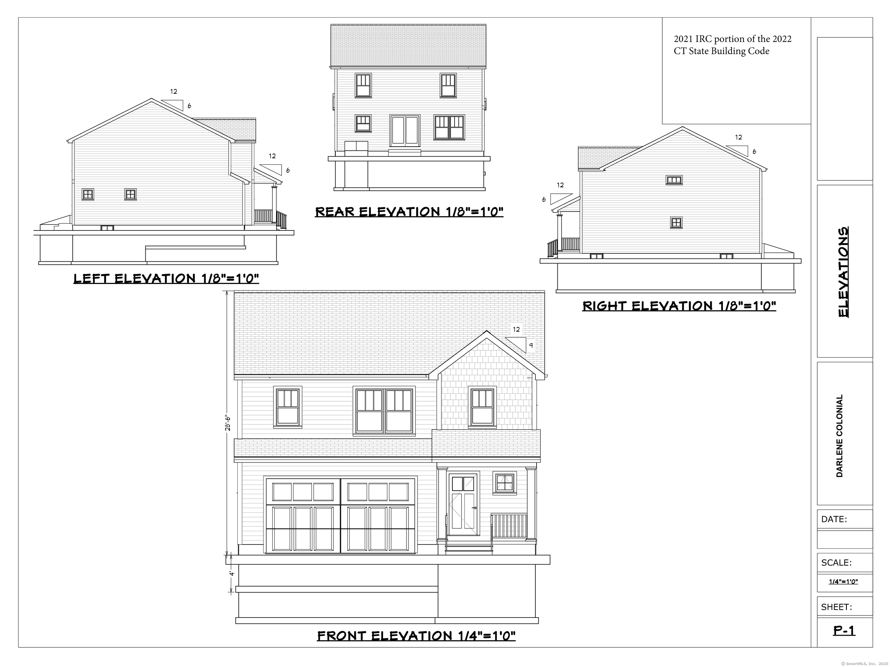
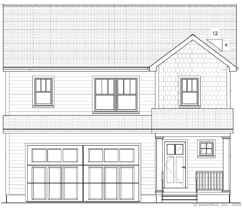
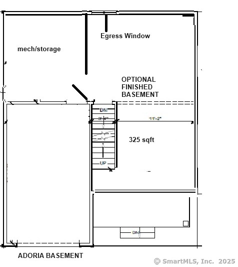
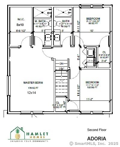
Gorgeous New Colonial! New, New, New Stunning 3-bedroom, 2.5-bathroom Colonial blends traditional charm with modern sophistication. Chat with your neighbors from your covered front porch. Enter into the Large Foyer and take in the inviting open floor plan. Utilize the modern mudroom that offers a practical touch, ensuring your home stays pristine. Culinary dreams come alive in the Grand Kitchen equipped with state-of-the-art SS Appliances, Granite countertops, Pantry storage, and exquisite cabinetry to choose from w/soft-close hinges. The dining area, accentuated by modern ornamental black lighting, sets the stage for memorable meals with loved ones. Upstairs, personal retreat awaits with a spacious front-to-back primary bedroom, designed for serenity. Two additional bedrooms and two baths ensure comfort for family and guests alike. Imagine the possibilities with a ready-to-finish basement - an ideal canvas for your home office, recreation room, or a private gym. Engineered flooring throughout exudes elegance, while the energy-efficient heat pump system and Energy Star rating deliver substantial savings on utility bills. For those desiring more, "The Darlene" upgrades to over 1,800 SF of living space and a 2 car garage. Whether starting out or stepping up, this home meets your lifestyle needs with grace and style.

Property Details of 4 East Street

Map Location

Driving Directions

Listed by Lori Gabriel of Coldwell Banker Realty ((860) 926-5101)

The data relating to real estate for sale on this website appears in part through the SmartMLS Internet Data Exchange program, a voluntary cooperative exchange of property listing data between licensed real estate brokerage firms, and is provided by SmartMLS through a licensing agreement. Listing information is from various brokers who participate in the SmartMLS IDX program and not all listings may be visible on the site. The property information being provided on or through the website is for the personal, non-commercial use of consumers and such information may not be used for any purpose other than to identify prospective properties consumers may be interested in purchasing. Some properties which appear for sale on the website may no longer be available because they are for instance, under contract, sold or are no longer being offered for sale. Property information displayed is deemed reliable but is not guaranteed. Copyright 2025 SmartMLS, Inc.

Hi there! How can we help you?

Contact us using the form below or give us a call.

Send Us A Message:

I agree to be contacted by Jeanne Crum via call, email, and text for real estate services. To opt out, you can reply 'stop' at any time or reply 'help' for assistance. You can also click the unsubscribe link in the emails. Message and data rates may apply. Message frequency may vary. Privacy Policy.

Do not fill in this field:

This site is protected by reCAPTCHA and the Google Privacy Policy and Terms of Service apply.